Zu Content springen

Zeichnungsbüro Neumann

Zeichnungsdienstleistungen für Ihre Bedürfnisse

Zeichnungsbüro Neumann bietet umfassende Zeichnungs- und Berechnungsdienstleistungen an. Unsere Expertise umfasst das Erstellen von Bestandsplänen, Anpassung bestehender Pläne und Digitalisierung von Plänen. Zusätzlich bieten wir Berechnungen für Trinkwasserrohrnetze, Abwasserrohrnetze sowie Entwässerungsgesuche und Auslegung Abwassertechnischen Anlagen an. Vertrauen Sie auf unsere präzise Badezimmerplanung. Auf Wunsch erstellen wir präzise Zeichnungen, die Ihnen einen genauen Eindruck von Raumaufteilung, Ausstattung und Gestaltungsmöglichkeiten vermitteln. So erhalten Sie eine verlässliche Grundlage für die Umsetzung Ihres Projekts.

Professionelle Zeichnungen und Berechnungen

Zeichnungsbüro Neumann

Unsere Dienstleistungen

Erstellen von Bestandsplänen

Wir bieten präzise und detaillierte Bestandspläne an. Unsere Pläne helfen Ihnen, den aktuellen Zustand Ihrer Immobilie exakt zu dokumentieren.
Gerne erstellen wir Ihnen auch die passenende Wohnraumberechnung für Ihr Gebäude.

Digitalisierung und Plananpassungen

Mit modernster Software zeichnen wir Ihre bestehenden Pläne nach und führen notwendige Anpassungen durch, um sicherzustellen, dass Ihre Dokumente immer auf dem neuesten Stand sind.

Individuelle Badgestaltung

Wir unterstützen Sie dabei, Ihr neues Badezimmer perfekt zu planen. Von der ersten Idee bis zur detaillierten Umsetzung begleiten wir Sie mit fachkundiger Beratung zur passenden Ausstattung und einer klar strukturierten Planung Ihres Badezimmers.

Entwässerungsgesuch

Für die Genehmigungsplanung Ihres Bauprojektes erstellen wir Ihnen das passende Entwässerungsgesuch mit allen erforderlichen Berechnungen und Plänen.

Trinkwasser und Abwasser

Wir führen umfassende Berechnungen und Zeichnungen für Trinkwasser- und Abwasserrohrnetze nach den aktuellen DIN-Normen durch. Dies stellt sicher, dass Ihr Projekt sowohl effizient als auch nachhaltig ist. 

 

 

 

 

Abwasseranlagen

Wir legen für Sie Abwassertechnische Anlagen aus. Über Abscheidetechniken wie Fettabscheider und Ölabscheider bis hin zu Hebeanlagen und Rückstausicherungen.

Kontaktieren Sie uns

Sie haben Fragen zu unseren Zeichnungs- und Berechnungsdienstleistungen oder möchten ein individuelles Angebot? Kontaktieren Sie uns einfach per E-Mail oder Telefon – wir beraten Sie gerne.

Telefon: 0155 /  65782146
E-Mail: zb-neumann@outlook.de

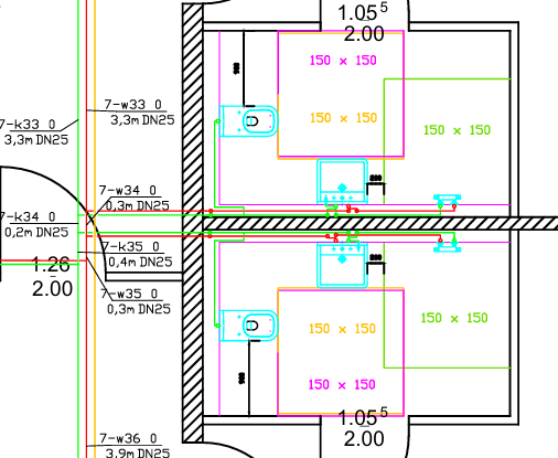
Screenshot 2025-04-29 163020

Über uns

Zeichnungsbüro Neumann ist ein spezialisiertes Zeichnungsbüro, das sich auf präzise Zeichnungs- und Berechnungsdienstleistungen konzentriert. Unser Team nutzt modernste Software, um einen umfassenden Service bieten zu können. Fundierte Erfahrung aus mehreren Jahren Tätigkeit in den Bereichen Planung, Ausführung und zeichnerischer Ausarbeitung sowie umfassende Fachkenntnisse in der Trinkwasser- und Abwassertechnik. Unsere Expertise und unser Engagement für Qualität machen uns zu einem verlässlichen Partner für Ihr nächstes Projekt.

Impressum

Zeichnungsbüro Neumann
Pascal Neumann
Bleichstraße 23
76593 Gernsbach

Telefon: 0155 /  65782146
E-Mail: zb-neumann@outlook.de

Verantwortlich für den Inhalt
Pascal Neumann
Bleichstraße 23
76593 Gernsbach

Umsatzsteuer-Nr.: 3917/49247

Datenschutzerklärung

1. Verantwortlicher

Zeichnungsbüro Neumann

Pascal Neumann
Bleichstraße 23
76593 Gernsbach

Telefon: 0155 / 65782146
E-Mail: zb-neumann@outlook.de

Deutschland


2. Erhebung und Verarbeitung von Daten
Wir erheben personenbezogene Daten nur, wenn Sie uns diese freiwillig zur Verfügung stellen, zum Beispiel über Kontaktaufnahme. Diese Daten werden ausschließlich zur Bearbeitung Ihrer Anfrage genutzt.


3. Nutzung von HubSpot
Auf dieser Website setzen wir HubSpot ein, einen Dienstleister zur Verwaltung von Kontaktformularen und Marketinginformationen. HubSpot kann personenbezogene Daten speichern. Die Nutzung erfolgt nur mit Ihrer Zustimmung. Weitere Informationen finden Sie in der HubSpot Datenschutzerklärung.


4. Cookies
Notwendige Cookies werden verwendet, um die Website funktionsfähig zu halten. Weitere Tracking-Cookies werden nur gesetzt, wenn Sie dies ausdrücklich erlauben (siehe Cookie-Banner auf der Website).


5. Weitergabe von Daten
Eine Weitergabe Ihrer Daten an Dritte erfolgt nur, wenn dies für die Bearbeitung Ihrer Anfrage notwendig ist oder wir gesetzlich dazu verpflichtet sind.


6. Ihre Rechte
Sie haben folgende Rechte in Bezug auf Ihre personenbezogenen Daten:

  • Recht auf Auskunft über die gespeicherten Daten

  • Recht auf Berichtigung, Löschung oder Einschränkung der Verarbeitung

  • Recht auf Datenübertragbarkeit

  • Recht auf Widerspruch gegen die Verarbeitung Ihrer Daten

Wenn Sie eines dieser Rechte ausüben möchten, kontaktieren Sie uns bitte per E-Mail an zb-neumann@outlook.de


7. Änderungen dieser Datenschutzerklärung
Wir behalten uns vor, diese Datenschutzerklärung zu ändern. Die jeweils aktuelle Version ist auf unserer Website verfügbar.